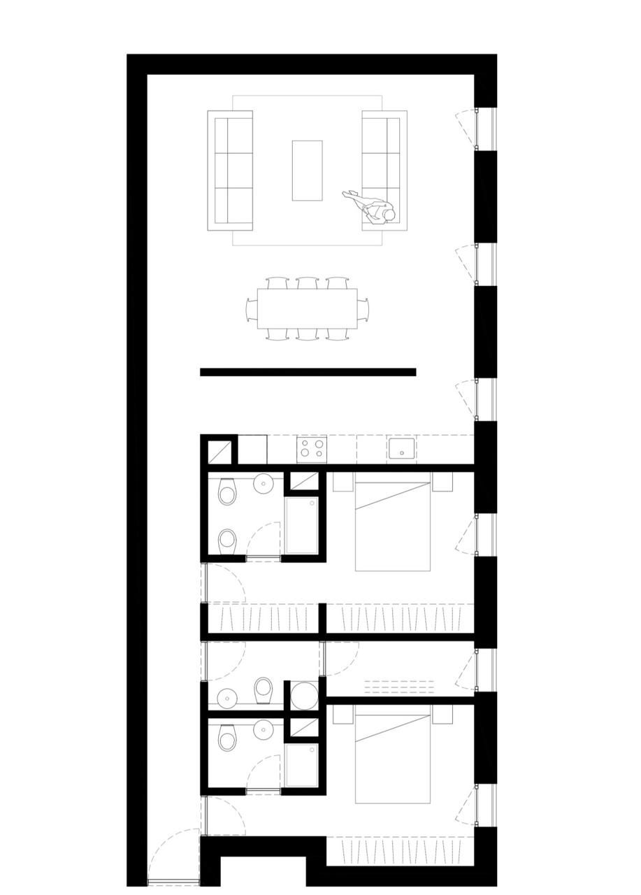
Apartament 2+1 ofrohet per shitje tek Long Hill Village, ne Mjull-Bathore. Ndertim cilesor siaps standarteve te EU. Security dhe administrim 24/7. Apartament me arkitekture moderne. Planimetri me hapesire te bollshme dhe te mireorganizuar. Ashensor. Orientim shume i mire, plot drite dhe diell. 3 Tualete, Ballkon. Zone mjaft e paster dhe e qete. Lehtesisht e aksesueshme.
Apartament 2+1 per shitje tek By Long Hill Village, ne Mjull-Bathore.
242 424,00€Price

